Available Spaces
| Floor | Use | GIA sq m | GIA sq ft | Status | Actions |
|---|---|---|---|---|---|
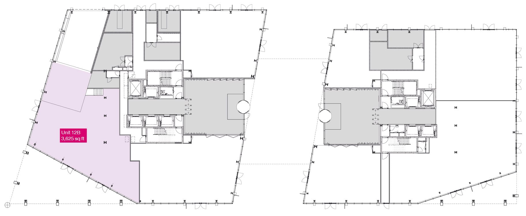
| 12 WP - Ground floor - Unit 12B | Office/Retail/Leisure | 337 | 3,625 | Available | Download |
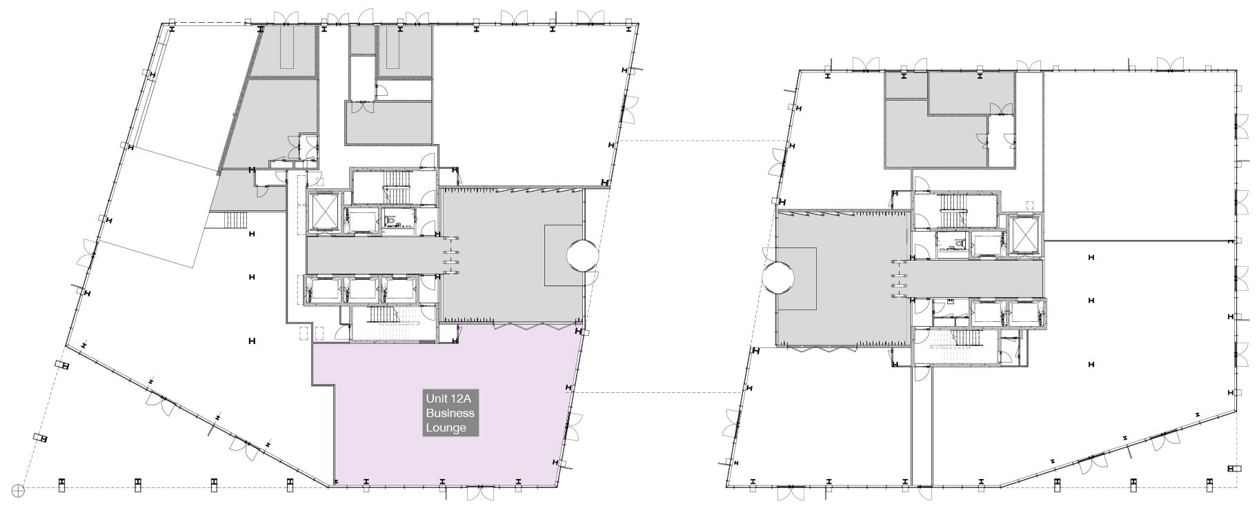
| 12 WP - Ground floor - Unit 12A | Business Lounge | 219 | 2,361 | Business Lounge | |
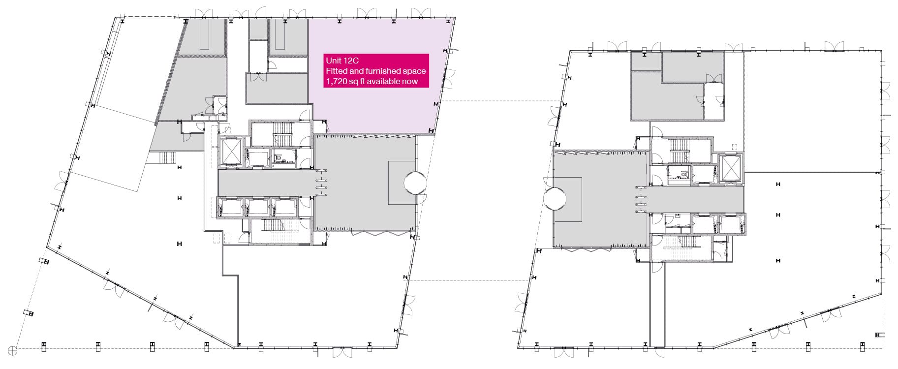
| 12 WP - Ground floor - Unit 12C | Office (Fitted and furnished space) | 160 | 1,720 | Available | Download |
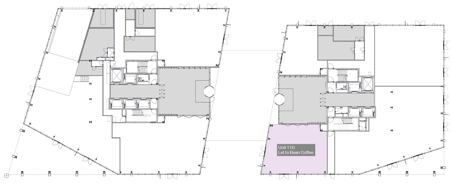
| 11 WP - Ground floor - Unit 11D | Retail | 145 | 1,566 | Let to Bean Coffee Roasters | |
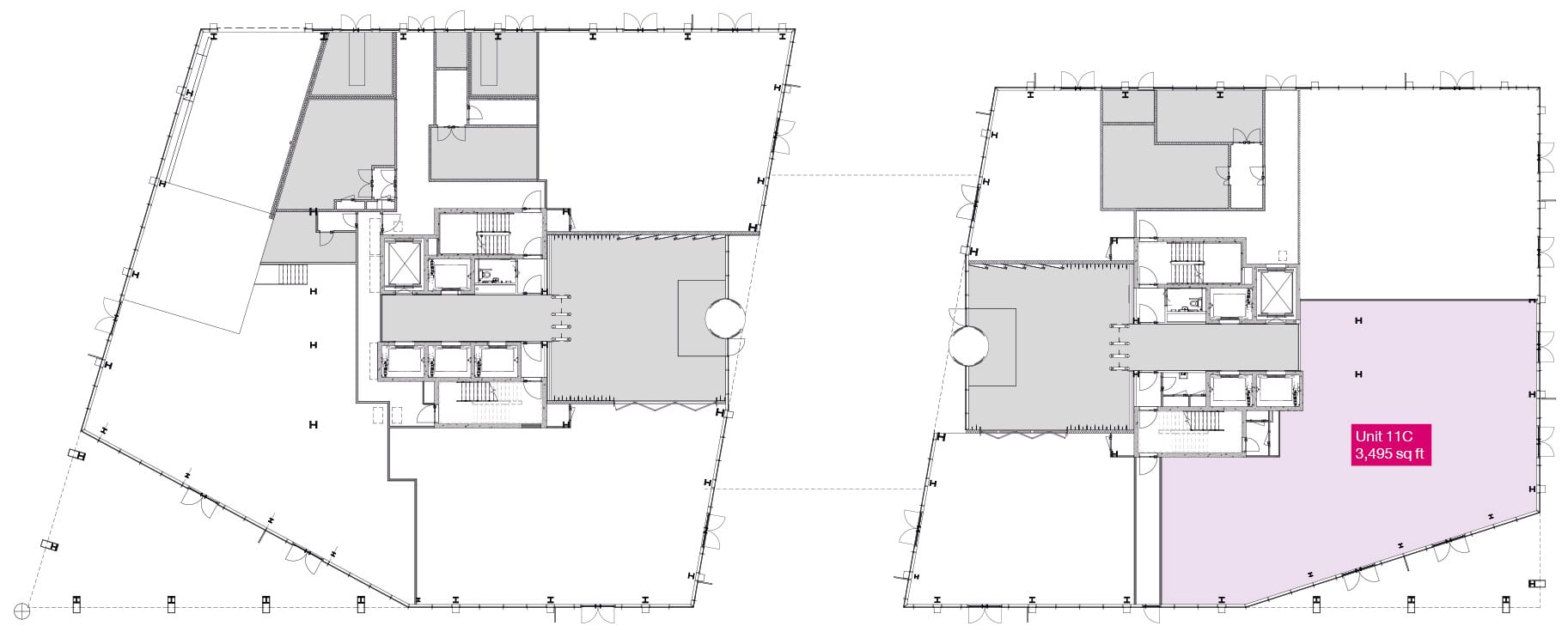
| 11 WP - Ground floor - Unit 11C | Retail / Leisure | 325 | 3,495 | Available | Download |
| 11 WP - Ground floor - Unit 11B | Retail / Leisure | 198 | 2,126 | Let to Arch Reformer Pilates | |
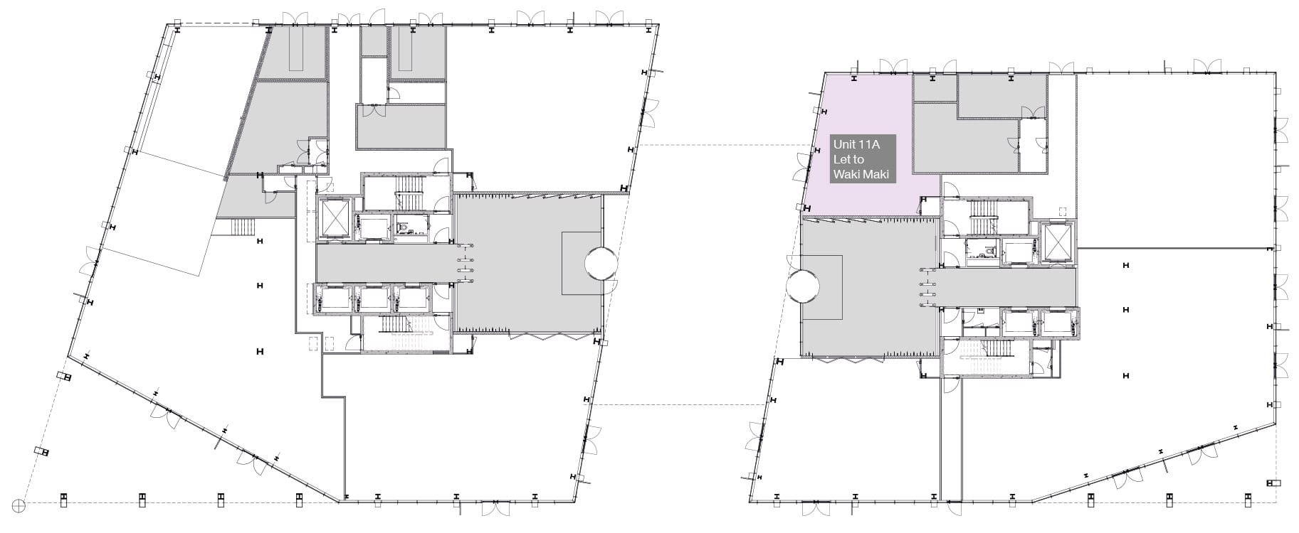
| 11 WP - Ground floor - Unit 11A | Retail | 87 | 933 | Let to Waki Maki | |
| Basement | Gym / Leisure | 929 | 10,000 | Under offer | Download |
12 WP - Ground floor - Unit 12A


11 WP - Ground floor - Unit 11D


11 WP - Ground floor - Unit 11B


11 WP - Ground floor - Unit 11A


Site plan
Fly Through Video
Interested in Wellington Place?
How to find us
4 Wellington Place
Leeds
LS1 4AP
Striving for an environmentally sound operation?
Discover Leeds’ most sustainable development.
Looking for a fun, vibrant location?
See what’s happening this month.












